Office
Reception
Kitchen
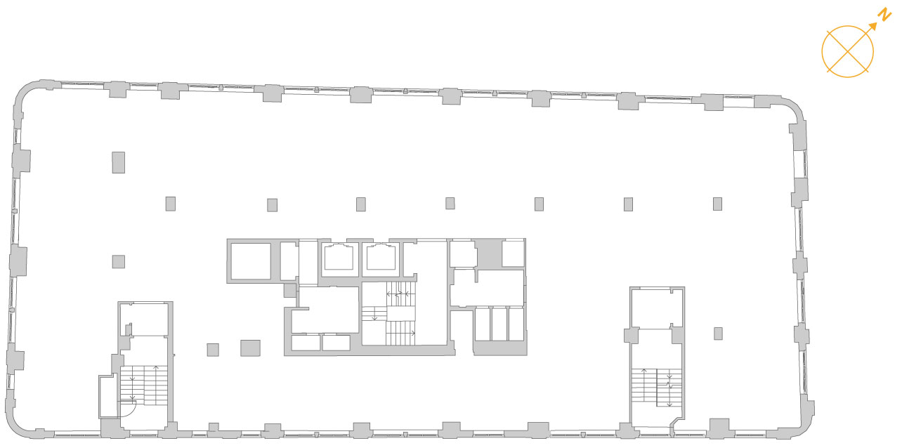
130 JERMYN STREET
4TH FLOOR
6,401 SQ.FT / 595 SQ.M
Option 2
Floor Plan
Office
Reception
Kitchen